Проект SD-76
Двухэтажный дом с функциональной планировкой
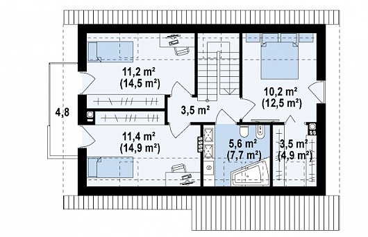
Общая площадь 159,8 кв.м
Вариант исполнения: СИП панели (структурная изоляционная панель) со стекломагниевым листом (СМЛ).
Ориентировочная цена дома
Наша компания предоставляет комплекс услуг при возведении дома на участке клиента:
- Эскизный проект;
- Конструкторская документация;
- Сухой (камерной сушки) пиломатериал, обработанный огнебиозащитным составом;
- СМЛ или СИП панели согласно конструкторской документации;
- Монтаж свайно-винтового фундамента на участке клиента;
- Монтаж силового каркаса (домокомплекта) на участке клиента;
- Монтаж кровли (гибкая черепица или металлочерепица);
- Монтаж проходных вентиляционных элементов.
Ориентировочная стоимость проекта "Двухэтажный дом с функциональной планировкой" или SD-76 при возведении дома на участке клиента составит 1 598 150 рублей.
Важно! Цена указана ориентировочно и может варьироваться в зависимости от сложности работ и пожеланий клиента.
Многие клиенты интересуются постройкой дома из СМЛ СИП панелей под ключ. Наша компания предоставляет такую услугу, но ориентировочную цену рассчитать очень сложно. Цена дома из СМЛ СИП панелей под ключ рассчитывается исходя из индивидуальных пожеланий клиента о материалах, внутренней и наружной отделке, а также окнах и дверях.
Позвоните нашим операторам или посетите наш офис, и сотрудники компании СМЛ ДОМ ответят на ваши вопросы и рассчитают стоимость работ.
